草莓破解版下载,草莓视频污片,草莓性爱视频,草莓视频色板APP下载

    当前位置:网站首页 > 新闻资讯 > 公司动态

    草莓破解版下载故障分析

    作者:永嘉亚特防腐阀门有限公司  来源:http://www.cclwei.com  更新时间:2016-04-07 16:07:03  点击次数:

    草莓破解版下载故障分析

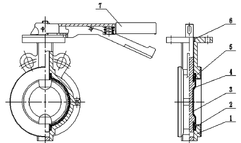
      由于多层软硬叠式密封圈固定在阀板上,当阀板常开状态时介质对其密封面形成正面冲刷,金属片夹层中的软密封带受冲刷后,直接影响密封性能。 
      草莓破解版下载使用使用故障分析:      
      一、由于多层软硬叠式密封圈固定在阀板上,当阀板常开状态时介质对其密封面形成正面冲刷,金属片夹层中的软密封带受冲刷后,直接影响密封性能。
      二、受结构条件的限制该结构不适应做通径DN200以下阀门,原因是阀板整体结构太厚,流阻大。
      三、因衬胶蝶阀的原理,阀板的密封面与阀座之间的密封是靠传动装置的力矩使阀板压向阀座。正流状态时,管夹阀, 草莓视频色板APP下载, 排气阀 介质压力越高密封挤压越紧。当流道介质逆流时随着介质压力的增大阀板与阀座之间的单位正压力小于介质压强时,密封开始泄漏。
      四,高性能草莓破解版下载,其特征在于:所述阀座密封圈由软性T形密封环两侧多层不锈钢片组成。
      阀板与阀座的密封面为斜圆锥结构,在阀板斜圆锥表面堆焊耐温、耐蚀合金材料;固定在调节环压板之间的弹簧与压板上调节螺栓装配一起的结构。这种结构有效地补偿了轴套与阀体之间的公差带及阀杆在介质压力下的弹性变形,解决了阀门在双向互换的介质输送过程中存在的密封问题。
      采用软性T型两侧多层不锈钢片组成密封圈,具有金属硬密封和软密封的双重优点,无论在低温和高温情况下,均具有零渗漏的密封性能。试验证明池正流状态(介质流动方向与蝶板转动方向相同)时,密封面的压力是传动装置的力矩和介质压力对阀板的作用产生的。正向介质压力增大时阀板斜圆锥表面与阀座密封面挤压越紧,密封效果越好。
      当逆流状态时,阀板与阀座之间的密封靠驱动装置的力矩使阀板压向阀座。随着反向介质压力的增大,阀板与阀座之间的单位正压力小于介质压强时,胶体磨 乳化机 过滤器 调节环的弹簧在受载后所储存的变形能补偿阀板与阀座密封面的紧压力起到自动补偿作用。
      因此本实用新型不像现有的技术那样,在阀板上安装软硬多层密封圈,而是直接安装在阀体上,在压板和阀座中间增设调节环是十分理想的双向硬密封方式。
    草莓破解版下载故障分析草莓破解版下载故障分析
    草莓破解版下载,草莓视频污片,永嘉草莓视频色板APP下载生产厂家永嘉亚特防腐阀门有限公司专业生产草莓破解版下载,草莓视频污片,草莓破解版下载谒诚为您提供优质的产品与服务。
    永嘉亚特防腐阀门有限公司
    联系人:吴经理
    电话:0577-67161009
    手机:13858881433 18966252897
    传真:0577-67160009
    Q  Q:936610452
    邮箱:wzszsbz@163.com
    网址:http://www.cclwei.com
    销售地址:温州瓯北镇肖桥头沿河路11号
    公司地址:永嘉县瓯北镇东瓯工业区和一村
    本文链接:http://www.cclwei.com//news/news373.html
    上一篇:草莓破解版下载及连接方式的分类
    下一篇:简析氟塑料衬里蝶阀的基本知识

    相关文章

    草莓视频色板APP下载属于什么阀门-2020-05-20
    草莓视频色板APP下载的作用-2020-05-07
    草莓视频污片都适合什么样的环境-2016-04-22
    草莓视频污片主要检查内容-2016-04-22
    草莓视频污片的优点-2016-04-22
    防腐草莓视频色板APP下载应用的注意事项-2016-04-22
    草莓视频污片的密封面如何研磨?-2015-06-11
    简析氟塑料衬里蝶阀的基本知识-2021-06-28
    草莓视频色板APP下载衬里材料,草莓视频色板APP下载衬F4与F46区别说明-2016-04-28
    草莓破解版下载及连接方式的分类-2016-04-07
    永嘉草莓性爱视频阀业有限公司郑重声明-2019-09-12
    草莓视频污片用途和使用-2016-04-27
    草莓视频污片的密封面如何堆焊?-2016-04-27
    草莓视频污片的优势-2016-04-27
    草莓破解版下载安装使用和注意事项(上)-2016-04-27
    关于草莓破解版下载

    公司简介

    联系草莓破解版下载

    网 址:http://www.cclwei.com邮 箱:wzszsbz@163.com
    公司地址:永嘉县瓯北镇东瓯工业区和一村
    © 2019 浙江草莓性爱视频阀业有限公司 版权所有 浙ICP备76479278号
    网站地图